美原町3番土地建物のご紹介です。建物内残置物は売主にて処分後の引渡しとなります。建物は一部手直しが必要です。初めてのマイホームや、投資物件としてもおすすめです。内見希望の方は、弊社HPのTHETAツアーをご覧いただいた上でお問い合わせください。残置物売主処分後現況有形有姿・契約不適合責任免責・境界明示無でのお引渡しです。お気軽にお問い合わせください。



















- 価格
- 100万円
- 種別
- 中古戸建
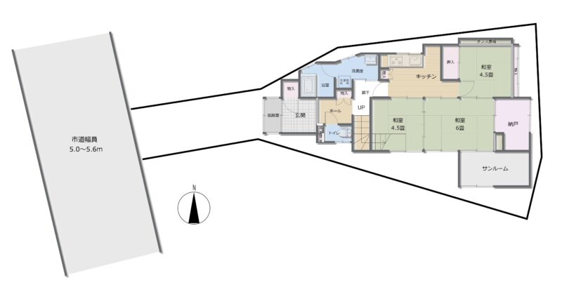
- 間取
- 5SDK
-
- 所在地
- 山形県鶴岡市美原町
- 交通
- JR羽越本線 鶴岡駅
バス(「田元小路」停留所 乗8分 停歩3分)
物件詳細
| 築年月 | 1965/2 | 新築/中古 | 中古 |
|---|---|---|---|
| 面積 | 92.77m² | 計測方式 | 内法 |
| バルコニー | 向き | ||
| 建物階数 | 地上2階 | 部屋階数 | |
| 建物構造 | 木造 | ||
| 間取内容 |
和室 4.5畳 1階 2室 和室 6畳 1階 1室 和室 6畳 2階 1室 和室 8畳 2階 1室 サンルーム |
||
| 駐車場 | 空有 軽1台分 | 取引態様 | 専属 |
| 引渡/入居時期 | 相談 | 現況 | 空家 |
| 地目 | 宅地 | 用途地域 | 第二種住居地域 |
| 都市計画 | 市街化区域 | 地勢 | 平坦 |
| 土地面積 | 121.84m² | 土地面積計測方式 | 公簿 |
| セットバック | 無 | セットバック量 | |
| 建ぺい率 | 60% | 容積率 | 200% |
| 土地権利 | 所有権 | 接道状況 | 一方 |
| 接道方向1 | 西 | 接道間口1 | 2m |
| 接道種別1 | 公道 | 接道幅員1 | 5m |
| 位置指定道路1 | |||
| 国土法届出 | 不要 | ||
| 周辺環境 |
朝暘第四小学校 鶴岡第四中学校 |
||
| 設備・条件 | |||
| URL | https://espo1484.co.jp/wp/images/2025/12/b603674303e9ca33c520af026d8f3d0d.pdf | ||
| 物件番号 | 中古戸建 | 掲載期限日 | 2026/06/30 |
| 自社物 | 自社物 | 状態 | 売出中 |
| 特記事項 | 残置物売主処分後現況有形有姿・契約不適合責任免責・境界明示無 /増改築:1982年2月/用途地域:第二種住居地域・第二種中高層住居専用地域 | ||
Loading...
※物件掲載内容と現況に相違がある場合は現況を優先と致します。
Contact
石橋不動産株式会社
建設業:山形県知事許可(般-3)第700389号
宅地建物取引免許:山形県知事(8)第1687号
お電話からのご予約・お問い合わせ
0235-22-5411
営業時間9:00~17:00
定休日:土・日・祝
WEBからのご予約・お問い合わせ
























