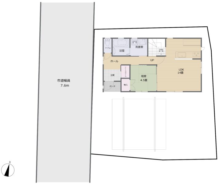
鶴岡駅徒歩10分、買い物施設エスモールや主婦の店駅前店もそれぞれ5,6分の徒歩圏内にある上畑町内、西側鶴岡市道幅員7.6mと広い道路に面している新築建売住宅のご紹介です。各部屋の広さ、収納を考慮した使い勝手の良い間取りです。1階52.72㎡・2階54.65㎡、ロフト6.62㎡:合計113.99㎡(34.48坪)あります。階段で上がるロフトスペースは、畳4帖分と広く、収納だけではなくさまざまな用途にご利用頂けます。駐車場はコンクリート敷きで縦列ですが4台分、カーポートも2台分設置します。キッチンには深型食洗器、浴室には浴室乾燥機など、細部にまで設備もこだわりました。山形県産木材、鶴岡の職人で建築しています。地元だからこそアフターフォローも万全です。お気軽にお問合せ下さい。













- 価格
- 2,880万円
- 種別
- 新築戸建
- 間取
- 4LDK
-
- 所在地
- 山形県鶴岡市上畑町 上畑町6番新築建売住宅
- 交通
- JR羽越本線 鶴岡駅 徒歩10分
物件詳細
| 築年月 | 2026/3 | 新築/中古 | 新築・未入居 |
|---|---|---|---|
| 面積 | 107.37m² | 計測方式 | 内法 |
| バルコニー | 向き | ||
| 建物階数 | 地上2階 | 部屋階数 | |
| 建物構造 | 木造 | ||
| 敷地全体面積 | 164.15m² | 延べ床面積 | |
| 間取内容 |
LDK 14畳 1階 1室 洋室 8.2畳 2階 1室 洋室 6畳 2階 2室 和室 4.5畳 1階 1室 ロフト |
||
| 駐車場 | 4台分(カーポート2台分付) | 取引態様 | 売主 |
| 引渡/入居時期 | 相談 | 現況 | 未完成 |
| 地目 | 宅地 | 用途地域 | 第二種中高層住居専用地域 |
| 都市計画 | 市街化区域 | 地勢 | |
| 建ぺい率 | 60% | 容積率 | 200% |
| 土地権利 | 所有権 | 接道状況 | 一方 |
| 接道方向1 | 接道間口1 | 12.5m | |
| 接道種別1 | 公道 | 接道幅員1 | 7.6m |
| 国土法届出 | 不要 | ||
| 周辺環境 |
朝暘第三小学校 鶴岡第二中学校 |
||
| 設備・条件 | IHコンロ 三口コンロ システムキッチン 追い焚き 独立洗面台 浴室乾燥機 ユニットバス トイレ専用 バス・トイレ別 エアコン ロフト付き 公営水道 排水下水 駐車場有 フローリング オール電化 駐車場4台分 |
||
| URL | https://espo1484.co.jp/wp/images/2025/11/3b1ea1bf10c0171dbab40dc545fba1b8.pdf | ||
| 物件番号 | 新築建売住宅 | 掲載期限日 | 2025/12/31 |
| 自社物 | 自社物 | 状態 | 売出中 |
| 特記事項 | 建築確認済 第R07確認建築鶴岡市 00134号 R7.11.10 第一種高度地区 準防火地域 | ||
Loading...
※物件掲載内容と現況に相違がある場合は現況を優先と致します。
Contact
石橋不動産株式会社
建設業:山形県知事許可(般-3)第700389号
宅地建物取引免許:山形県知事(8)第1687号
お電話からのご予約・お問い合わせ
0235-22-5411
営業時間9:00~17:00
定休日:土・日・祝
WEBからのご予約・お問い合わせ














