暑い日も寒い日も使えるエアコンが付いており、空調管理に便利。こだわりのお店をつくりたい方は一度ご覧ください、飲食店可の建物です。駐車場に空きがあるので車を駐車するスペースにお困りの方にもお薦めです。色々な業種の飲食店として活用できるので、利便性が良いです。





























- 賃料
- 13万円 (うち消費税1.1818万円)
- 種別
- 店舗(建全部)
- 坪単価
- 0.2619万円
- 更新料
- 0.25ヶ月
-
- 所在地
- 山形県鶴岡市本町1丁目 udビル
- 交通
- JR羽越本線 鶴岡駅
バス(本町川端通り 乗6分 停歩6分)
物件詳細
| 築年月 | 1978/10 | 新築/中古 | 中古 |
|---|---|---|---|
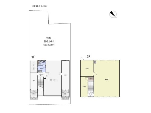
| 面積 | 189.33m² | 計測方式 | 壁芯 |
| バルコニー | 向き | ||
| 建物階数 | 地上2階 | 部屋階数 | 2階 |
| 建物構造 | RC | ||
| 間取内容 | |||
| 住宅保険料 | 20,000円 2年 | ||
| 駐車場 | 空有 建物5台以上付属 | 取引態様 | 仲介 |
| 引渡/入居時期 | 相談 | 現況 | 空家 |
| 周辺環境 |
鶴岡市立朝暘第二小学校 鶴岡市立鶴岡第三中学校 |
||
| 設備・条件 | 楽器相談可 事務所可 バス専用 トイレ専用 エアコン 都市ガス 公営水道 | ||
| 物件番号 | te | 掲載期限日 | 2026/03/31 |
| 自社物 | 自社物 | 状態 | 空有 |
| 特記事項 | 加入義務:必加入 会社:アーク賃貸保証 利用料:概算保証委託料:150,000円 | ||
Loading...
※物件掲載内容と現況に相違がある場合は現況を優先と致します。
Contact
石橋不動産株式会社
建設業:山形県知事許可(般-3)第700389号
宅地建物取引免許:山形県知事(8)第1687号
お電話からのご予約・お問い合わせ
0235-22-5411
営業時間9:00~17:00
定休日:土・日・祝
WEBからのご予約・お問い合わせ





























