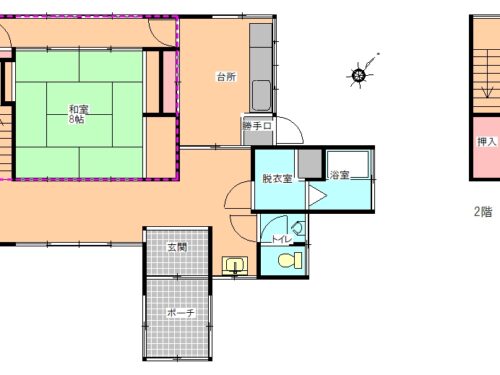
室内設備は脱衣所・バストイレ別・浴室に窓など大変充実しております。上着やズボンなども折り畳まずに収納できるクロゼットのある物件です。大家族でもゆったりと過ごせる、広々とした室内のある戸建て物件。128.41㎡ある建物面積で暮らせます。





















- 賃料
- 3.8万円
- 種別
- 一戸建
- 間取
- 4DK
- 敷金
- 7.6万円
- 更新料
- 0.25ヶ月
-
- 所在地
- 山形県鶴岡市湯野浜2丁目 湯野浜二丁目9番貸家
- 交通
- JR羽越本線 羽前大山駅
バス(うしお荘前 乗2分 停歩4分)
物件詳細
| 築年月 | 1967/01 | 新築/中古 | 中古 |
|---|---|---|---|
| 面積 | 128.41m² | 計測方式 | 壁芯 |
| バルコニー | 向き | ||
| 建物階数 | 地上2階 | 部屋階数 | |
| 部屋/区画番号 | 総戸/区画数 | 1区画 | |
| 建物構造 | 木造 | ||
| 間取内容 | 和室 8畳 1階 2室 和室 6畳 1階 1室 和室 8畳 2階 1室 | ||
| 住宅保険料 | 20,000円 2年 | ||
| 駐車場 | 無 | 取引態様 | 仲介 |
| 引渡/入居時期 | 即時 | 現況 | 空家 |
| 周辺環境 |
鶴岡市立湯野浜小学校 鶴岡市立鶴岡第五中学校 |
||
| 設備・条件 | 楽器不可 2人入居可 バス・トイレ別 地デジ対応 プロパンガス 公営水道 ペット相談 |
||
| 物件番号 | ka | 掲載期限日 | 2125/12/31 |
| 自社物 | 自社物 | 状態 | 空有 |
| 特記事項 | 加入義務:必加入 会社:アーク賃貸保証 利用料:概算保証委託料:26,600円 | ||
Loading...
※物件掲載内容と現況に相違がある場合は現況を優先と致します。
Contact
石橋不動産株式会社
建設業:山形県知事許可(般-3)第700389号
宅地建物取引免許:山形県知事(8)第1687号
お電話からのご予約・お問い合わせ
0235-22-5411
営業時間9:00~17:00
定休日:土・日・祝
WEBからのご予約・お問い合わせ

























