【成約物件】成約済に付きご紹介出来ません。ご了承ください。下記は販売中のコメントです。
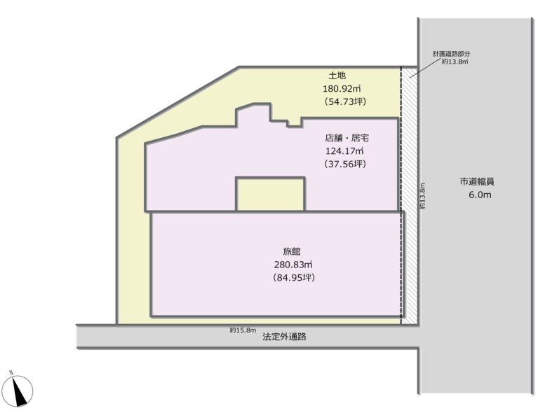
湯野浜温泉街にある、旧旅館、隣地にある店舗居宅付きのご紹介です。日本海を一望出来る物件で、旅館業、もしくは別荘などにもおすすめです。温泉を使用する際には、契約金、また使用量に応じて使用料が掛かります。徒歩圏内、宮沢地区にある自宅・店舗も無償で差し上げます。室内残置物処分費用も買主様負担になることを見込んで販売価格を設定しています。予めご承知おきください。現況有形有姿・契約不適合責任免責・境界明示無でのお引渡しです。お気軽にお問い合わせ下さい



































